西四王住宅
下諏訪町西四王5020-6
下諏訪駅まで徒歩10分(800m)
建物は約4年前に一部リフォームしています
価格 1060万円
中古住宅/売買物件
物件No.1003618
| 設備 | 都市ガス 温泉 |
|---|
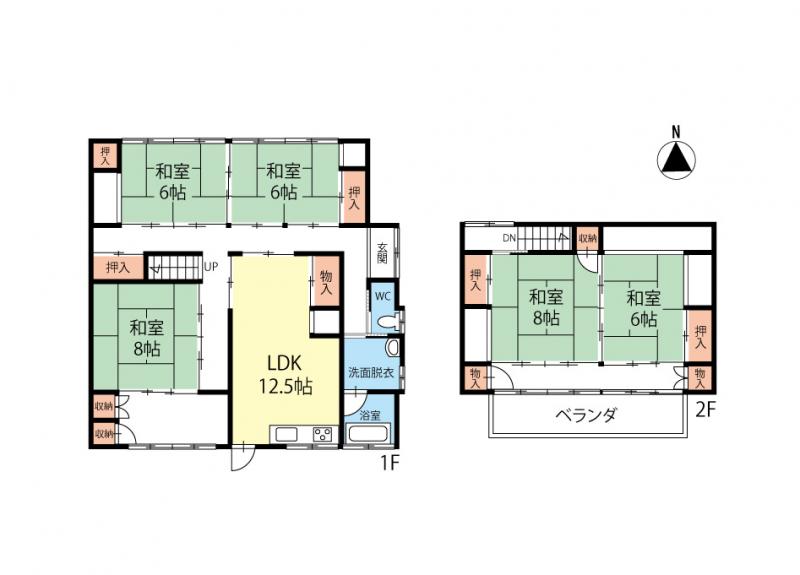
| 土地面積 | 土地坪数 | 延床面積 | 延床坪数 | 間取り | 構造 |
|---|---|---|---|---|---|
| 159m2 | 48.0975 | 134.43m2 | 40.66508 | 5LDK | 木造亜鉛メッキ鋼板葺2階建 |
| 道路付け | 北側8m | ほか私道面積 | --- | 地目 | 宅地 |
|---|---|---|---|---|---|
| 用途地域 | 準工業 | 建ぺい率 | 60% | 容積率 | 200% |
| 完成年月 | 昭和39年9月 | 土地権利 | 所有権 | 手数料 | 要 |
| ガス | 都市ガス | トイレ/浴室 | 水洗/有 | 駐車場 | 小型車1台(現地確認要) |
| 引渡条件 | --- | 引渡時期 | 相談 | 取引態様 | 専任媒介 |
| 小学校 | 南小学校 | 中学校 | 下中学校 | ||
| 設備 | 水道,下水道,ベランダ,専用庭,暖房便座,バス・トイレ別,カメラ付インターホン,下駄箱,エアコン,フローリング,給湯,物置,照明,ウォシュレット | ||||
| 備考 | --- | ||||





